Beit Miriam, part of the Resilience and Gender Equality Authority of Tel Aviv-Jaffa Municipality, is the first urban center dedicated to advancing gender equality. It serves as a vibrant hub for social and community activities.
The branding process was guided by core values of unity, solidarity, connection, diversity, and personal fulfillment. These values shape a space that broadens perspectives and inspires growth for all.
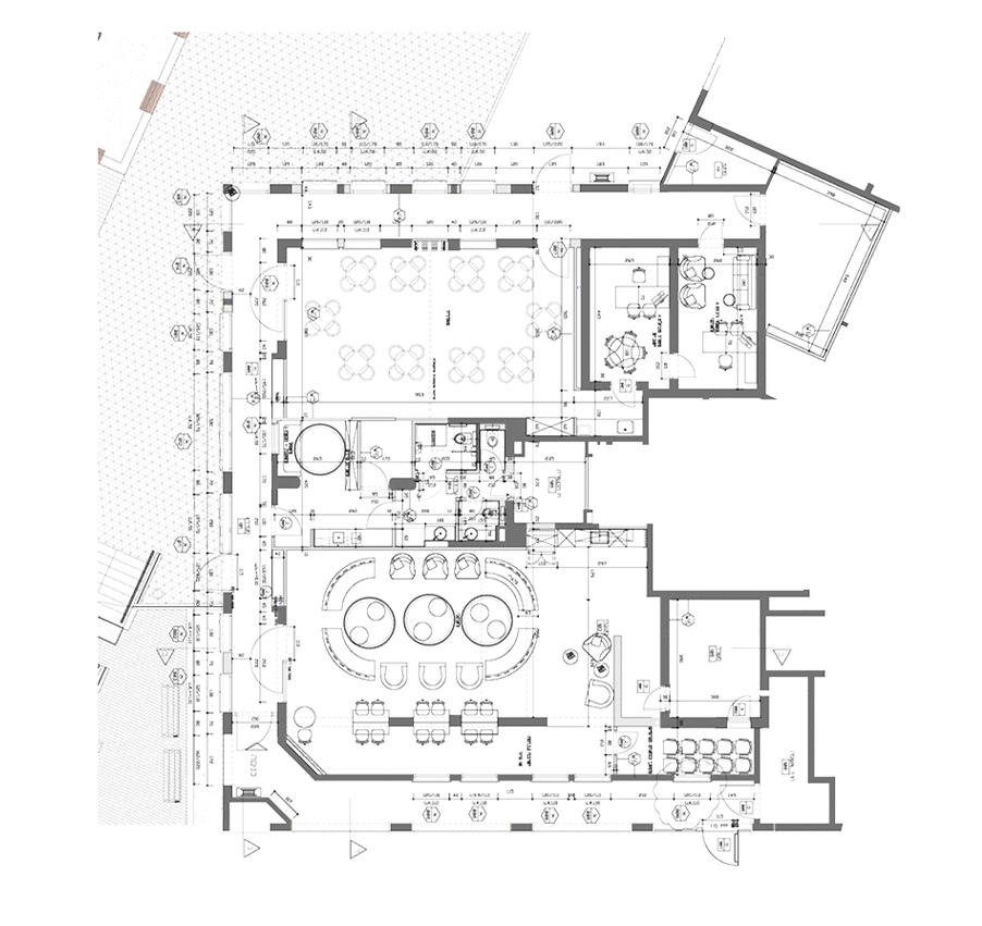
Furniture was carefully curated, with custom-designed pieces reflecting the brand identity. Special attention was given to the dynamic needs of each space and the diverse activities taking place throughout the center. Every piece of furniture and the unique character of each area extend the branding narrative, seamlessly integrating with the signage system and overall visual communication. These elements convey key messages and enhance the user experience for all visitors.
Beit Miriam continues to stand as a central landmark in the urban and cultural landscape of Jaffa.



















